| Clave | Tema |
|---|---|
| -- | Guía de la Materia |
| 1 | Introducción & ¿Qué ver en una computadora? |
| 2 | Conceptos Teóricos |
| 3 |
Planta Arquitectónica Sencilla Configuración auxiliar de AutoCAD (a la par del ejercicio) |
| 4 |
Planta Arquitectónica Parte 2 Configuración auxiliar de AutoCAD (a la par del ejercicio) Elevación Sencilla |
| 5 |
Membretes y planos Simbología Configuración de Layout Realizar el membrete |
| 6 | EXÁMEN PRÁCTICO |
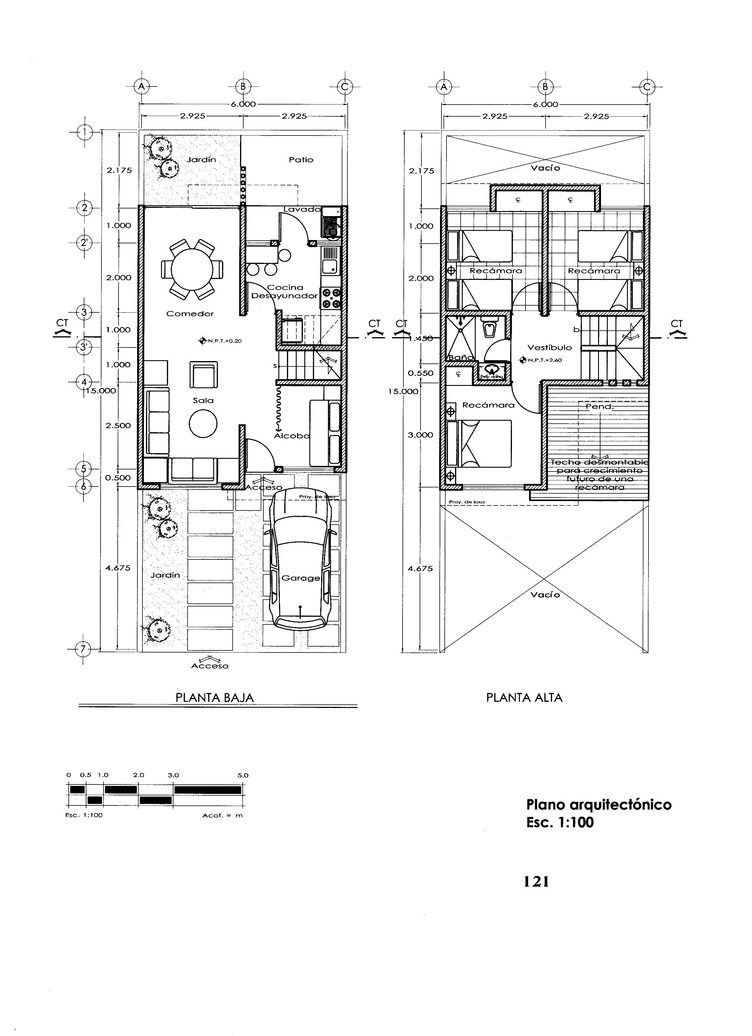
| 7 | Planta Arquitectónica / Enfoque en escaleras Planta arquitectónica baja y alta |
| 8 |
Elevaciones
Elevaciones - Vista Lateral |
| 9 | Cortes Parte 1 - Introducción
Cortes Parte 2 - Preparación Cortes Parte 3 - Planta Baja Cortes Parte 4 - Planta Alta Cortes Parte 5 - Tercer Nivel y detalles |
| 10 | Elevaciones Interiores y Detalles Arquitectónicos |
| 11 | Plano de cocinas |
| 12 | SEGUNDO PARCIAL |
| 13 | Plano de baños |
| 14 | Trucos de autocad
Trucos de autocad |
| 15 | Producto Integrador |
| 16 | Producto Integrador |